KOINAT

Domaine : Neuf / Rénovation / Amén. Int.
Projet : Extension et rénovation d’un cabinet médical
Statut : Livré
Lieu : 96 cours Gambetta - 33150 Cenon
Date : 12.23 > 10.24
Surface : 150m²
Phases : PRO / DCE / DET / VISA / AOR / GPA

    Afin de développer la présence médicale dans le secteur de Cenon près de Bordeaux, le docteur Isabelle Péré-Comby a engagé le projet d’extension de son cabinet médical SCI KOINAT dans la cour existante attenante. Par la rénovation partielle de l’existant et par la construction complète d’une extension de 50m2 contenant un nouveau bureau médical, une salle d’attente, une salle de repos et une nouvelle cour avec parking PMR, le cabinet médical change de dimension et participe de manière significative au développement urbain, sanitaire et social de cette région périurbaine.

Le projet d’architecture reste simple et respectueux de son contexte : structure poteau poutre béton, maçonnerie en brique haute performance, toit terrasse, isolation fibre de bois, menuiseries aluminium et dallage en pierre blonde. Concernant l’existant, les interventions ont principalement consisté en un rafraîchissement global (peintures, appareillages, mobilier) et en l’agrandissement de la zone d’accueil.

koinat depuis rue

1 —

cour avant travaux 2

2 —

cour avant travaux 1
plan avant travaux

3 —

4 —

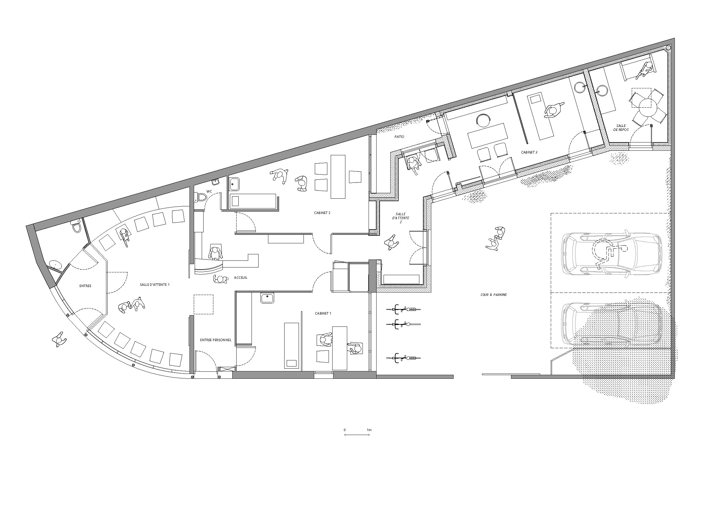
plan rénovation et extension
chantier dalle portée

5 —

chantier fondation
chantier maçonnerie
chantier menuiseries
réception travaux

6 —

nouvelle cour reception

7 —

entrée réception
cabinet médical extension

8 —

salle attente extension
salle de repos extension
détail plan vasque

10 —

détail revêtement sol
détail mobilier
accueil rénovation

9 —

passage extension existant
passage existant extension

1 — Extérieur
2 — Cour intérieure avant travaux
3 — Plan des existants avant travaux
4 — Plan du projet d’extension et de rénovation
5 — Le chantier
6 — Extension lors de la livraison (10.24)
7 — Nouvelle cour (avant plantation)
8 — Intérieur de l’extension
9 — Passage extension / existant + rénovation et agrandissement du mobilier d’accueil
10 — Détails