TEMPLE - STU

Domaine : Rénovation / Aménagements intérieurs
Projet : Rénovation complète et aménagements d’un studio bordelais
Statut : En cours
Lieu : 19 rue du Temple - 33000 Bordeaux
Date : 11.24 > en cours
Surface : 17.5m²
Phases : ESQ / PRO

   Au cœur du centre historique de Bordeaux, un studio de 17,5 m², laissé à l’abandon pendant plusieurs années, fait lui aussi l’objet d’un ambitieux projet de rénovation. La famille propriétaire souhaite le rénover intégralement dans des délais rapides afin de le proposer à la location. Cette démarche permettra de dégager les fonds nécessaires pour financer les travaux de l’appartement situé un étage plus bas.

Au fil du temps, des travaux ont été réalisés à l’intérieur et autour de ce studio, entraînant une accumulation d’éléments architecturaux parfois non conformes aux règles de l’art. L’objectif est donc de procéder à un curage complet du logement et de remettre l’ensemble aux normes, tant sur le plan technique qu’au niveau de l’isolation thermique et phonique, afin d’en faire un espace confortable sous tous ses aspects.

Un réagencement est également prévu pour optimiser l’espace et exploiter au mieux la surface disponible. Cela inclut la suppression d’un escalier, construit de manière arbitraire pour accéder au toit, et son remplacement par une paroi simple, conformément aux accords de copropriété. Cette modification permettra de récupérer quelques précieux mètres carrés.

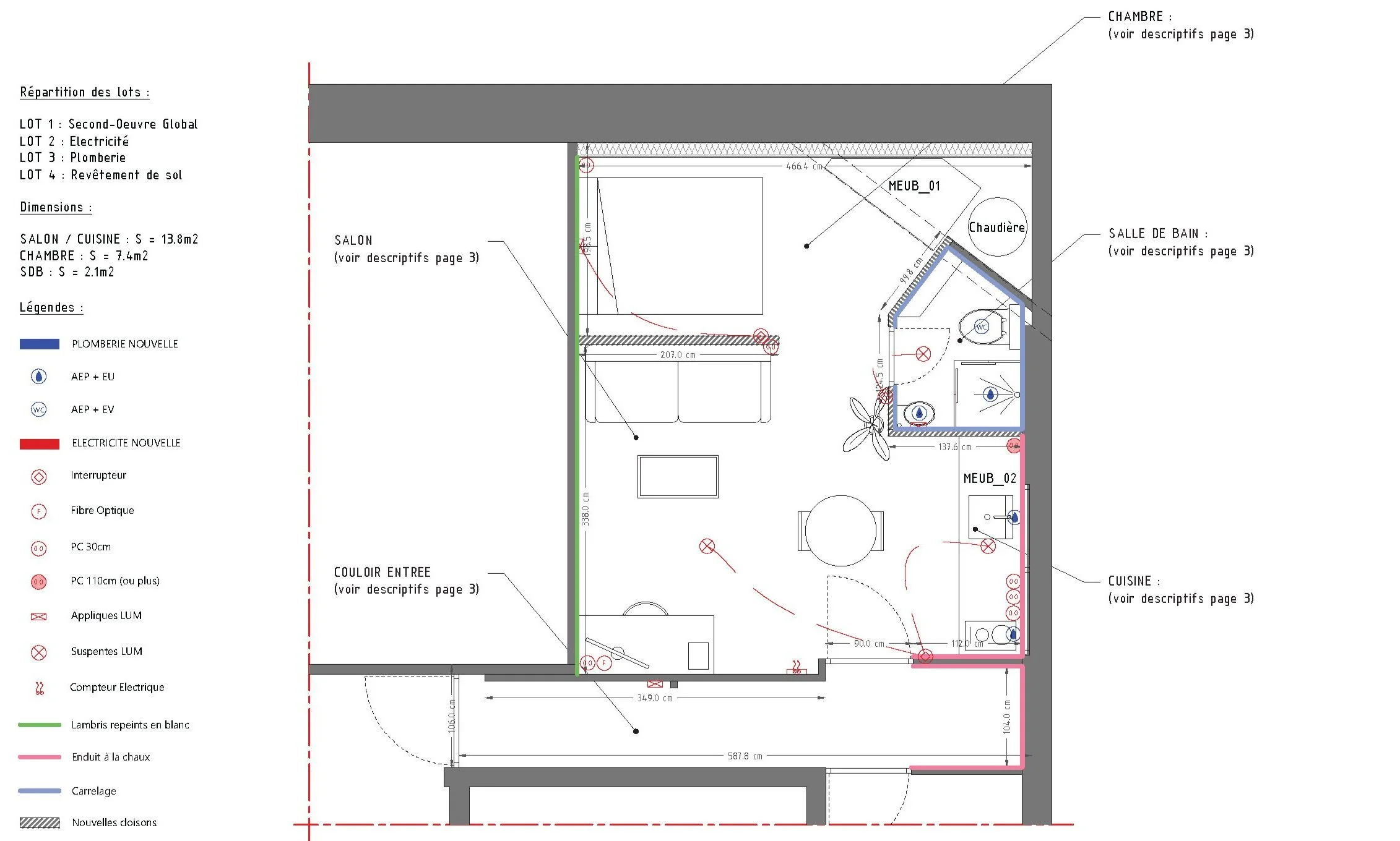
Enfin, une nouvelle configuration de la salle de bain sera mise en place, accompagnée de la création d’agencements pratiques et au goût du jour. L’ensemble du projet vise à rafraîchir et moderniser le studio tout en le rendant fonctionnel et attrayant pour les futurs locataires.

1 —

plan copro studio
entrée existant
vue immeuble rue
cuisine existant
renfoncement existant
bureau existant
dressing existant
chambre existant
sdb existant
plan avant travaux studio

2 —

plan projet rénovation studio

3 —

détail nouveau dressing

4 —

détail nouvelle cuisine

5 —

1 —Extrait du RCP illustrant le studio concerné - lot 50 & 51 - 4e étage - 17.5m²/ Photographies de l’existant avant travaux : Immeuble depuis la rue / Couloir d’entrée avec escalier menant au toit / Renfoncement intérieur conséquent de l’espace pris par l’escalier du couloir / Cuisine / Coin bureau / Chambre / Renfoncement sous charpente dans un coin de la chambre / Salle de bain
2 — Plan existant du studio avec descriptif des travaux de curage
3 — Plan du projet de rénovation et d’aménagement du studio
4 — Plan d’aménagement du mobilier 01 - Chambre
5 — Plan d’aménagament du mobilier 02 - Cuisine